Overview
- Updated On:
- Settembre 10, 2025
- 2 Bathrooms
Descrizione
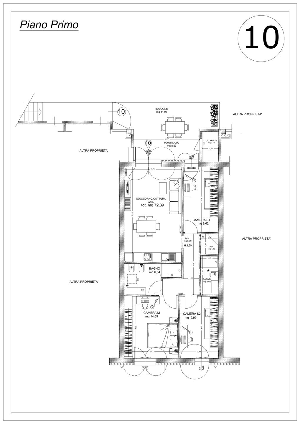
VT445 – TOSCANA – CAMPIGLIA MARITTIMA – VENTURINA TERME (LI) –
APPARTAMENTO PIANO PRIMO CON TERRAZZA, LOGGIATO E GARAGE PRIVATO CON SOLARE TERMICO E FOTOVOLTAICO
In un contesto tranquillo e residenziale, a due passi dalle terme e a pochi minuti dal mare, proponiamo un elegante appartamento al primo piano con ingresso indipendente, ampi spazi esterni e dotazioni tecnologiche di ultima generazione per un abitare sostenibile e confortevole.
Caratteristiche principali:
• Superficie commerciale: 82 mq
• Accesso indipendente da scala privata
• Terrazza abitabile con loggiato coperto per pranzi all’aperto e relax
• Zona giorno luminosa con angolo cottura e dispensa
• 3 camere da letto: 1 matrimoniale + 2 singole
• 2 bagni finestrati
• Garage privato di 15 mq + locale tecnico + posto auto privato
Tecnologie e comfort:
• Classe energetica A – alte prestazioni e massimo risparmio
• Impianto di riscaldamento autonomo con pompa di calore caldo/freddo
• Boiler ibrido per acqua calda sanitaria
• Impianto solare termico e fotovoltaico
• Detrazione fiscale recuperabile
• Finiture moderne e materiali di qualità
Posizione ideale:
• 1 km dalle rinomate Terme di Venturina
• 5 km dallo storico borgo di Campiglia Marittima
• 6 km dalle spiagge dorate del Parco di Rimigliano
• 9 km dal fascino etrusco del Golfo di Baratti e da San Vincenzo
• 15 km dall’imbarco per l’Isola d’Elba
A+
A
B
C
D
E
F
G
H






