Overview
- Updated On:
- Settembre 10, 2025
- 2 Bathrooms
Descrizione
VT444 – TOSCANA – CAMPIGLIA MARITTIMA – VENTURINA TERME (LI) –
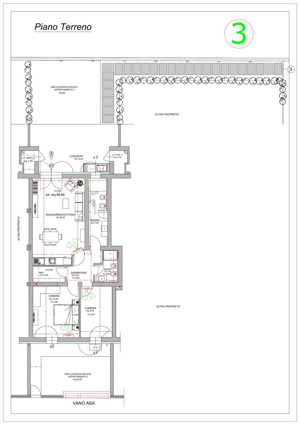
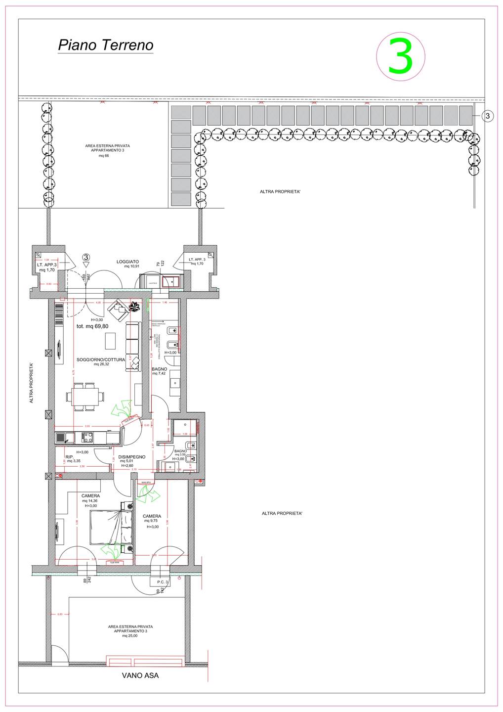
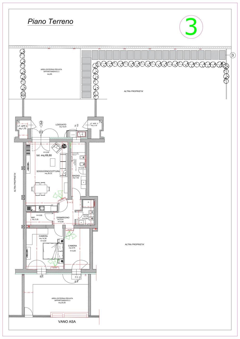
Appartamento piano terra con giardino e loggiato privato
Nel cuore autentico della Toscana, dove la campagna incontra il mare e le terme abbracciano il benessere, proponiamo un appartamento esclusivo al piano terra con giardino privato e loggiato, perfetto per chi desidera uno stile di vita all’insegna della tranquillità, della natura e del comfort moderno.
Caratteristiche principali:
• Superficie commerciale: 82 mq
• Area esterna privata su due lati: 89 mq
• 2 camere da letto (matrimoniale + singola)
• 2 bagni finestrati
• Zona giorno luminosa con angolo cottura e accesso diretto al giardino
• Loggiato coperto ideale per pranzi all’aperto e momenti di relax
• 2 locali tecnici e 1 posto auto privato
Dotazioni e plus:
• Classe energetica A – elevata efficienza e risparmio energetico
• Impianto autonomo a pompa di calore caldo/freddo
• Produzione acqua calda con boiler ibrido in pompa di calore
• Detrazione fiscale recuperabile
• Finiture moderne e spazi ottimizzati
Posizione strategica:
• A 1 km dalle Terme di Venturina, per vivere ogni giorno come una vacanza
• A 5 km dallo storico borgo di Campiglia Marittima
• A 6 km dal mare incontaminato del Parco di Rimigliano
• A 9 km dal fascino unico del Golfo di Baratti e da San Vincenzo
• A 15 km dall’imbarco per l’Isola d’Elba
A+
A
B
C
D
E
F
G
H






