Overview
- Updated On:
- Settembre 16, 2025
- 1 Bathrooms
Descrizione
VT448 – TOSCANA – CAMPIGLIA MARITTIMA – VENTURINA TERME (LI)
APPARTAMENTO AL PIANO TERRA CON GIARDINO, LOGGIATO E POSTO AUTO PRIVATO
Nel cuore della splendida Val di Cornia, a pochi minuti dalle rinomate Terme di Venturina, sorge questo incantevole appartamento al piano terra, perfetto connubio tra comfort moderno e fascino toscano.
Un’opportunità unica per vivere la quiete della natura, senza rinunciare alla vicinanza al mare e ai servizi.
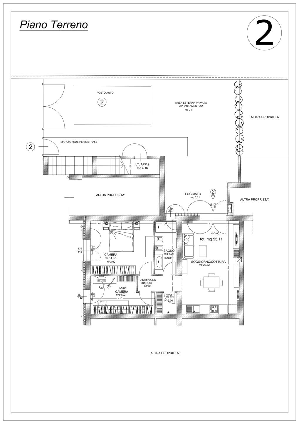
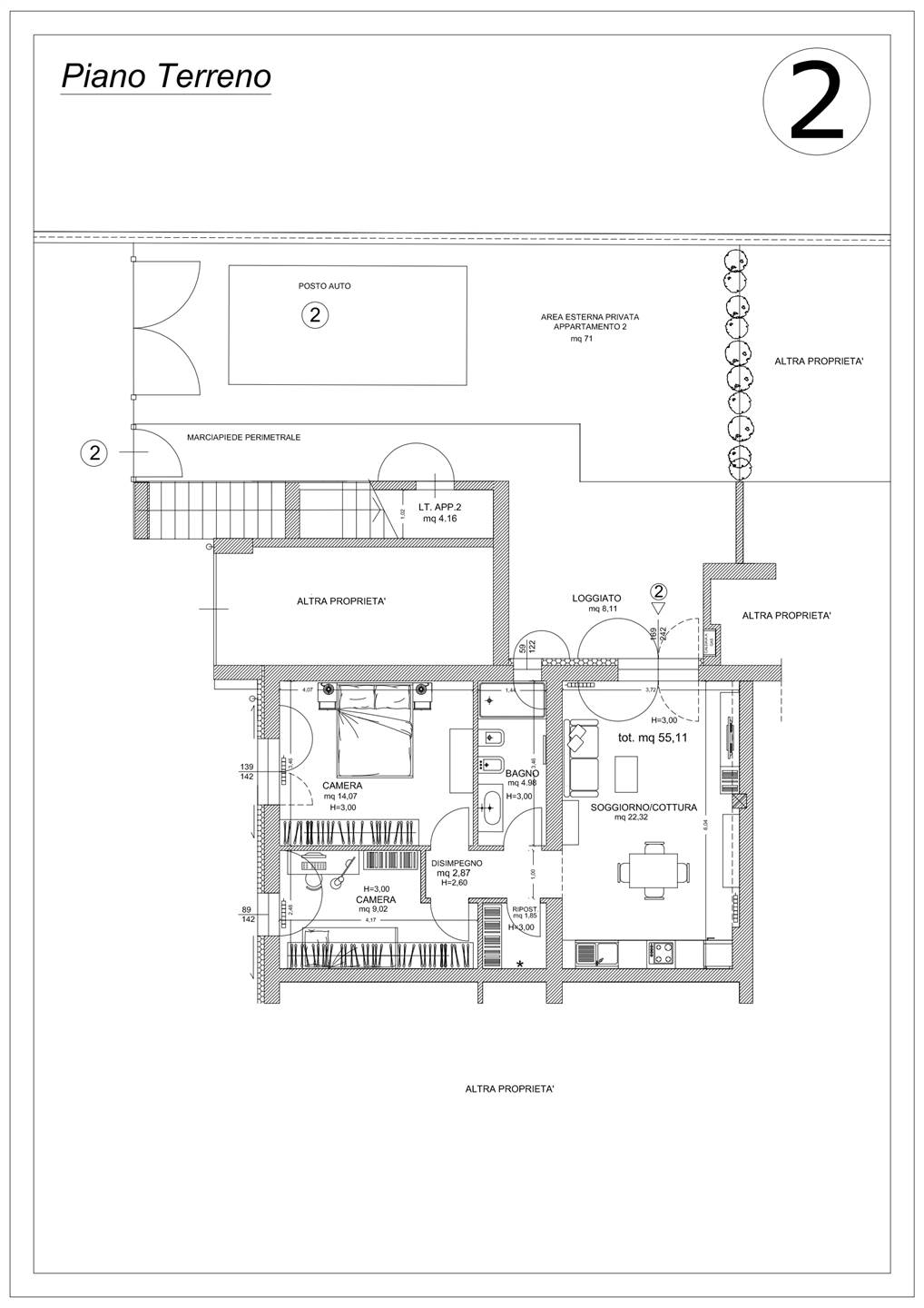
L’immobile si estende su una superficie di 66 mq, distribuiti con armonia e funzionalità:
varcando il giardino privato, si viene accolti da un elegante loggiato, ideale per pranzi all’aperto o momenti di relax immersi nel verde. L’ingresso conduce all’ampio soggiorno con angolo cottura, luminoso e accogliente, cuore pulsante della casa.
La zona notte si compone di una camera matrimoniale, una camera singola, un bagno finestrato e un comodo ripostiglio. Completano la proprietà un locale tecnico e un posto auto privato, per la massima comodità.
Grazie a un attento intervento di riqualificazione, l’appartamento raggiunge la classe energetica A, garantendo efficienza, risparmio e un importante recupero fiscale per l’acquirente.
Una posizione straordinaria:
• A 1 km dalle Terme di Venturina, per vivere ogni giorno come una vacanza rigenerante
• A 5 km dal borgo medievale di Campiglia Marittima, ricco di storia e tradizione
• A 6 km dalle spiagge incontaminate del Parco di Rimigliano, riserva naturale sul mare
• A 9 km dal Golfo di Baratti e da San Vincenzo, tra archeologia e vita balneare
• A 15 km dagli imbarchi per l’Isola d’Elba, porta d’accesso a uno dei gioielli dell’Arcipelago Toscano
Un rifugio perfetto per chi cerca una residenza primaria, una casa vacanze o un investimento sicuro nel cuore autentico della Toscana.
A+
A
B
C
D
E
F
G
H






